
CASA ALVA
A Casa Alva está localizada em um condomínio fechado na cidade de Londrina, Paraná, e foi projetada com o propósito de venda, sem um cliente definido. O objetivo principal era criar um projeto que pudesse atender a diferentes perfis familiares.
O terreno, situado em aclive, apresentou um desafio inicial devido ao desnível em relação à rua. Para solucioná-lo, o terreno foi nivelado, permitindo a implantação de dois pavimentos.
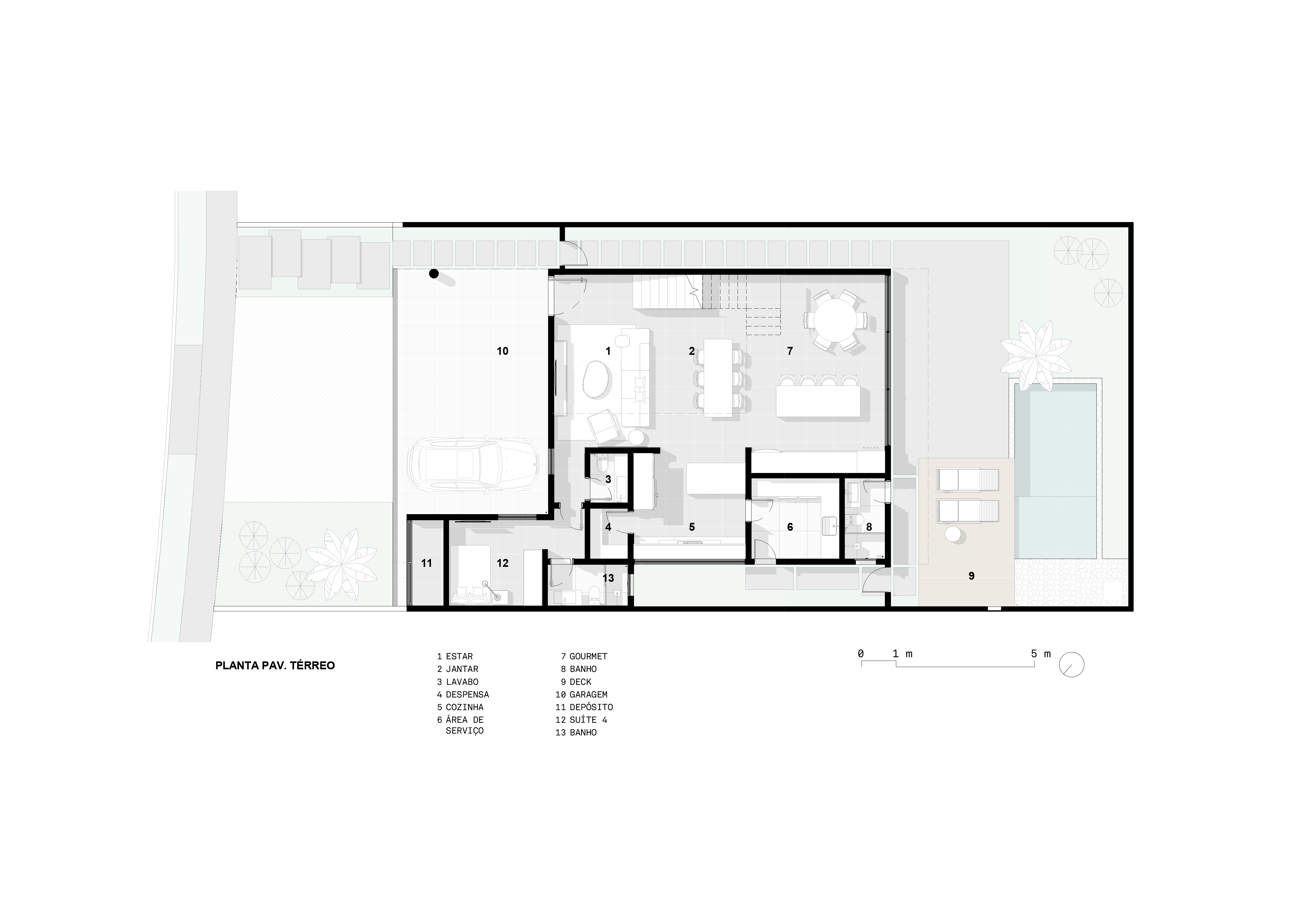
O programa do térreo é acessado pela garagem, projetada para acomodar três veículos. Ao lado, há um box destinado ao armazenamento de ferramentas e utensílios para a manutenção da casa. Este nível também abriga os espaços sociais, como sala de estar, jantar, TV, cozinha e área gourmet, todos integrados em um ambiente amplo com pé-direito duplo, que se conecta diretamente ao fundo do lote, onde estão o deck e a piscina. Nele também estão localizados uma suíte/escritório, um lavabo, área de serviço e um banheiro externo.
O projeto valoriza a ventilação cruzada, com aberturas frontais e posteriores alinhadas, além de janelas superiores no pé-direito duplo, que permitem a saída do ar quente e favorecem a circulação natural.
LOCALIZAÇÃO
Londrina, Paraná, Brasil
ÁREA
350m²
ANO DO PROJETO
2023
FOTOGRAFIA
Manuel Sá

A volumetria da Casa Alva foi projetada para otimizar o aproveitamento do terreno e do coeficiente construtivo permitido, resultando em um volume compacto e funcional. O pavimento superior avança em relação à garagem, criando uma subtração no térreo que ajusta as proporções e define os limites do espaço. A construção foi realizada em alvenaria, com pintura predominando como acabamento. Nas fachadas frontal e posterior, foram utilizados revestimentos em concreto e madeira, que organizam as aberturas e acrescentam elementos visuais nas principais elevações da edificação.


ser_*10anos
© 2025 Ser Arquitetos. Todos os direitos reservados.
Rua Campo Grande, 85, sala 6, Londrina-Pr
+55 (43) 33610298
contato@serarquitetos.com



