
CASA ATELIÊ
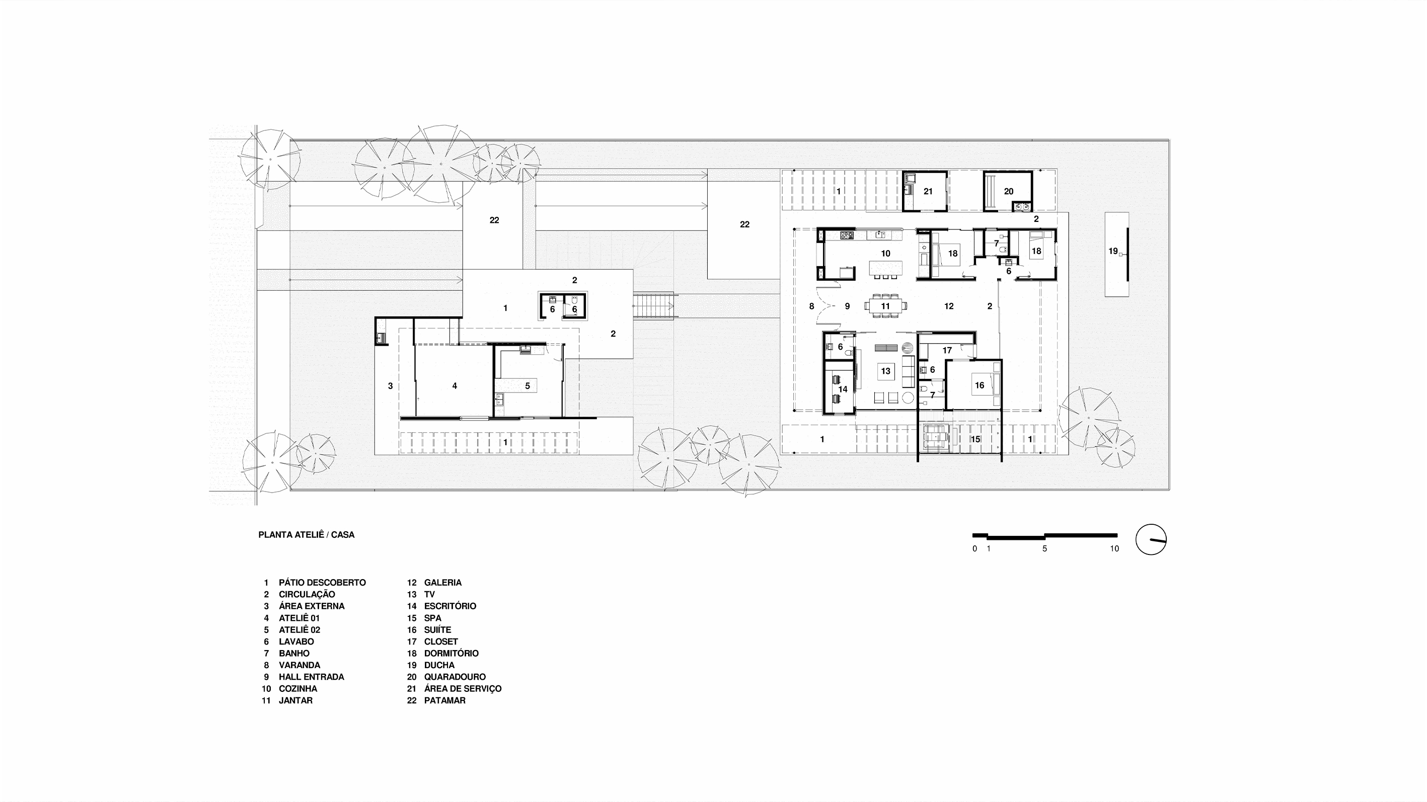
A proposta da Casa Ateliê investiga a coexistência entre espaço doméstico e espaço de trabalho a partir da separação clara dos programas. Inserida em um condomínio na área sul de Londrina, a residência se implanta de forma linear, explorando a topografia do terreno e a construção de percursos entre volumes.
O projeto é estruturado a partir de dois pavilhões com programas distintos — casa e ateliê — conectados por percursos externos, pátios e áreas de transição. Essa estratégia permite que trabalho e vida cotidiana coexistam sem se sobrepor, preservando a autonomia de cada uso ao mesmo tempo em que mantém uma leitura unitária do conjunto.
A cobertura metálica de grandes beirais atua como elemento unificador e técnico do projeto. Sua inclinação assimétrica reforça o caráter pavilhonar da arquitetura, favorece o controle solar e permite amplas aberturas superiores, que garantem iluminação natural e ventilação cruzada aos ambientes internos. A estrutura aparente assume papel fundamental na expressão arquitetônica, revelando a lógica construtiva e conferindo leveza aos volumes.
Os fechamentos alternam planos opacos e superfícies permeáveis, criando diferentes graus de transparência e privacidade. Brises, painéis vazados e grandes planos de vidro estabelecem uma relação direta com o entorno, ao mesmo tempo em que filtram a paisagem e a luz. O uso contido de materiais — estrutura metálica, madeira, concreto e alvenaria branca — reforça a sobriedade do conjunto e evidencia a precisão dos encontros construtivos.
LOCALIZAÇÃO
Londrina, Paraná, Brasil
ÁREA
320m²
ANO DO PROJETO
2025
STATUS
Estudo Preliminar

ser_*10anos
© 2025 Ser Arquitetos. Todos os direitos reservados.
Rua Campo Grande, 85, sala 6, Londrina-Pr
+55 (43) 33610298
contato@serarquitetos.com



