
CASA EM JAGUAPITÃ
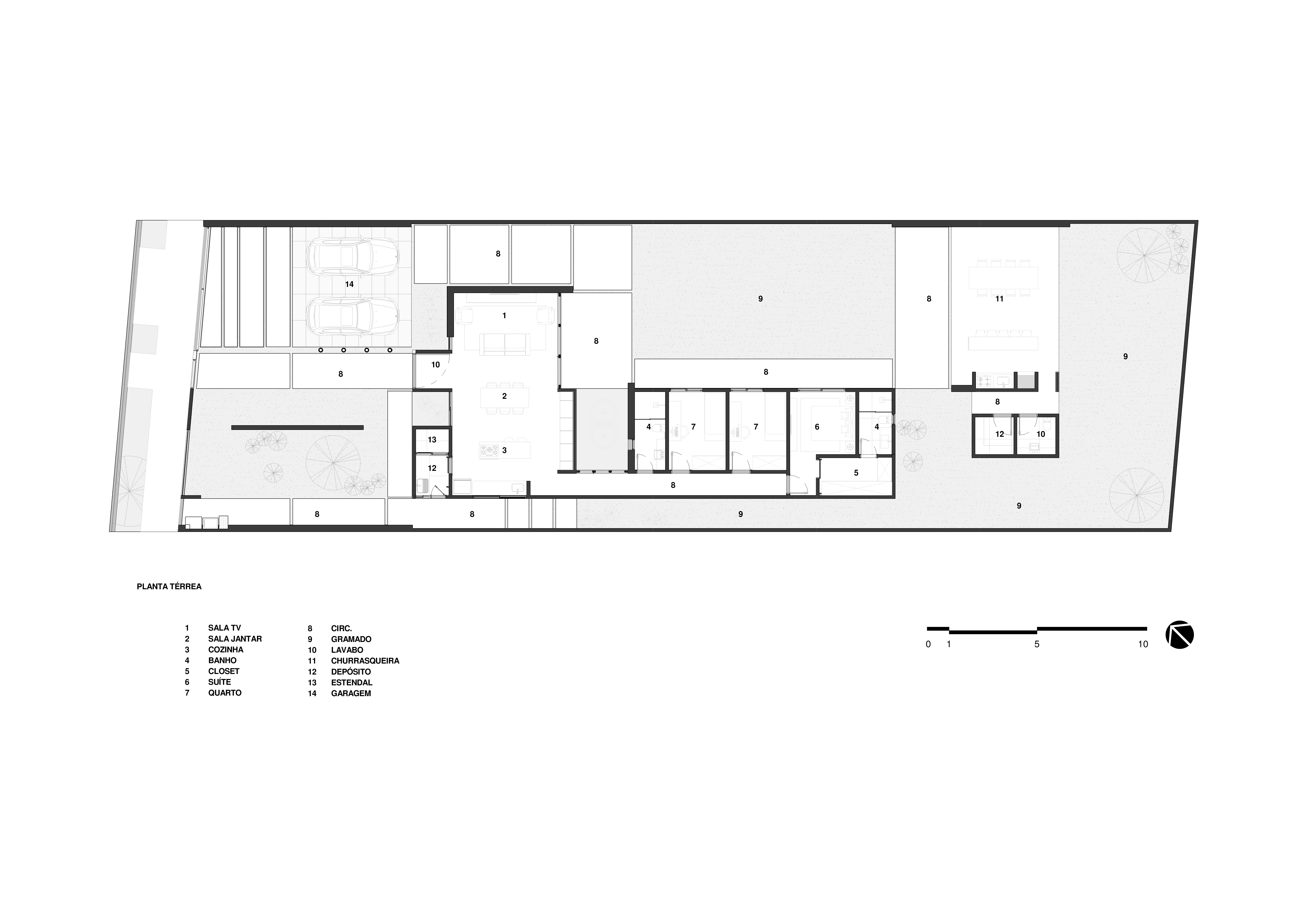
Implantada em um lote longitudinal, a casa é organizada a partir de um gesto único e contínuo: um grande plano horizontal que se destaca do solo e estrutura todo o conjunto. Desde a concepção, a cobertura assume papel central no projeto, não apenas como proteção, mas como elemento capaz de articular programa, circulação e espaços de permanência.
Sob esse plano contínuo, os volumes se organizam de forma fragmentada, criando uma sequência de cheios e vazios que diluem os limites entre interior e exterior. O percurso pela casa acontece sempre em relação a pátios e jardins, garantindo iluminação natural, ventilação cruzada e uma experiência espacial marcada pela transição gradual entre espaços abertos, semiabertos e fechados.
O pátio central atua como núcleo organizador do programa, conectando os ambientes sociais e íntimos e permitindo que a circulação deixe de ser um espaço residual para se tornar parte ativa da vivência da casa. A implantação privilegia a horizontalidade e o contato com o solo, evitando hierarquias rígidas e reforçando a leitura da casa como um pavilhão contínuo.
LOCALIZAÇÃO
Jaguapitã, Paraná, Brasil
ÁREA
214m²
ANO DO PROJETO
2016
FOTOGRAFIA
Antônio Dias Jr.





ser_*10anos
© 2025 Ser Arquitetos. Todos os direitos reservados.
Rua Campo Grande, 85, sala 6, Londrina-Pr
+55 (43) 33610298
contato@serarquitetos.com



