
CASA MIRANTE
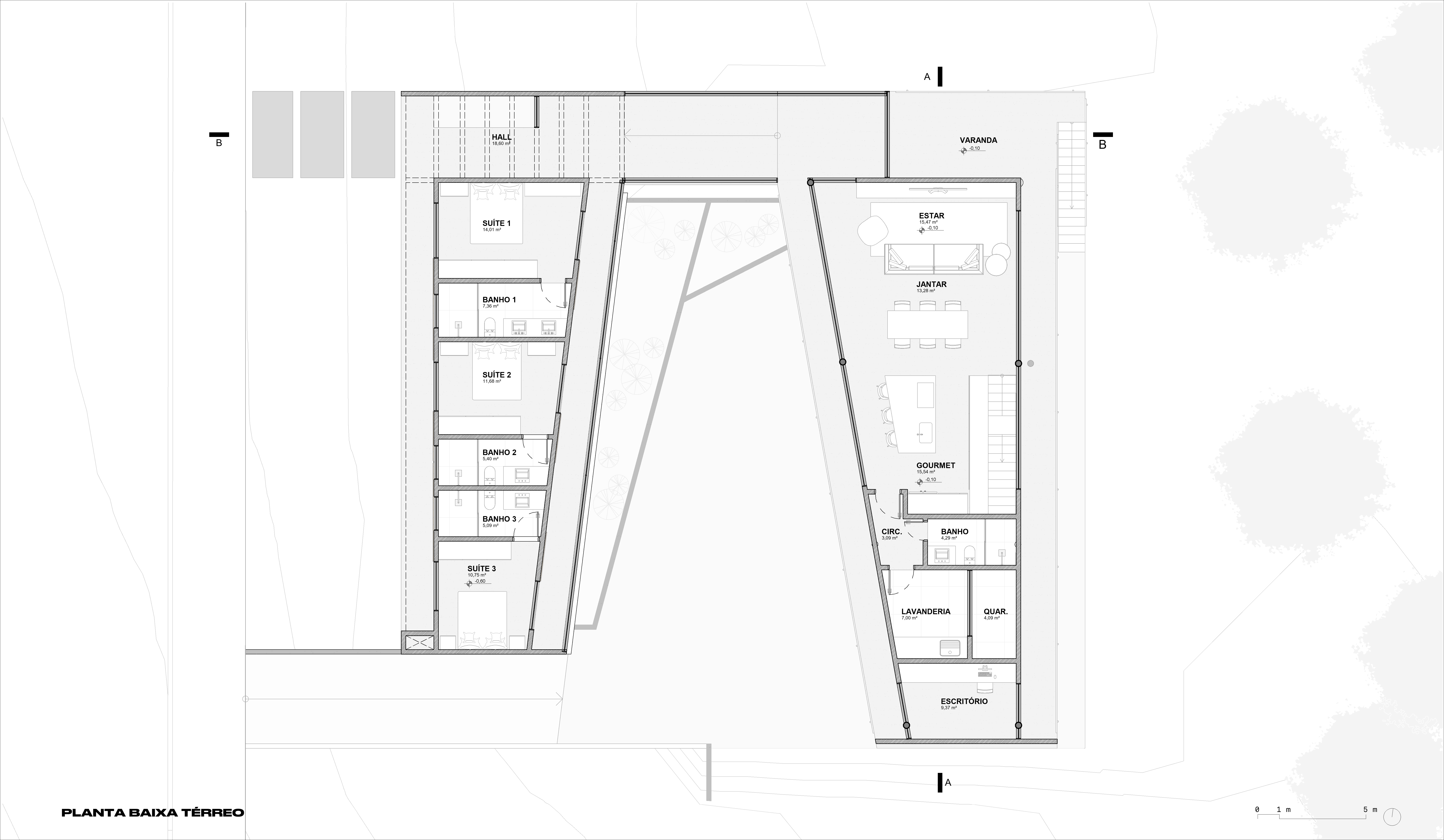
Localizada em Cuiabá, a Casa do Cerrado surge da ideia de projetar uma residência sem saber, efetivamente, quem a ocupará. Recentemente, o escritório recebeu inúmeras solicitações para o desenvolvimento de projetos residenciais, destinados à venda. Esse fenômeno é um reflexo de uma substancial demanda por moradias em diferentes esferas de mercado no Centro Oeste do país. Essa diretriz imprimiu à equipe responsável um novo e mais abrangente programa de necessidades, exigindo uma compreensão mais profunda dos anseios de uma parcela previamente definida das pessoas que poderiam se tornar potenciais compradoras da casa. Baseando-se nessas diretrizes, o escritório reuniu os elementos essenciais para o projeto, dividindo-o em dois setores: o íntimo e o social. Já na entrada da residência, a garagem com forro e painéis em madeira conferem forma a parte da volumetria, deixando nítido o posicionamento do acesso principal. No hall de entrada, um pergolado coberto por uma lâmina de vidro permite a entrada da luz solar, gerando ao longo do dia diferentes padrões de sombras nas paredes e no piso. Após o hall, o usuário é conduzido ao setor social, que reúne as salas de jantar e estar/TV, cozinha e churrasqueira em um ambiente amplo e conectado à área externa.
LOCALIZAÇÃO
Rondonópolis, Mato Grosso, Brasil
ÁREA
174m²
ANO DO PROJETO
2022
ILUSTRAÇÕES
Antonio Dias Jr.

A intensa presença da luz do sol demandou um papel crucial no desenvolvimento do projeto. Nos estados do centro-oeste, as elevadas temperaturas requerem atenção especial nos projetos arquitetônicos. A residência estabelece um diálogo importante com esse aspecto, incorporando diversos elementos que


ser_*10anos
© 2025 Ser Arquitetos. Todos os direitos reservados.
Rua Campo Grande, 85, sala 6, Londrina-Pr
+55 (43) 33610298
contato@serarquitetos.com



