
CONDOMÍNIO NO LAGO
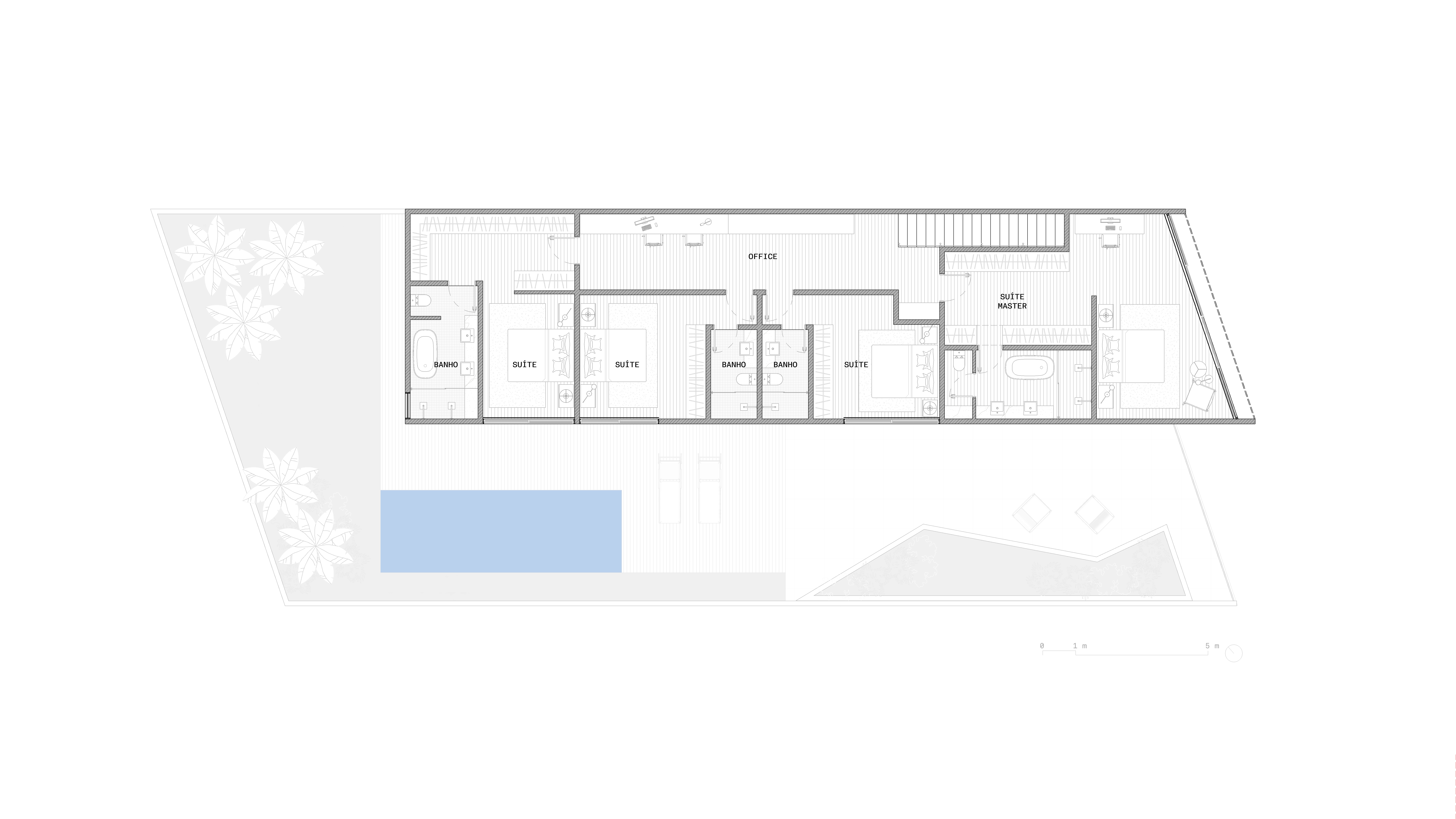
Implantado à beira de um lago em Londrina, o condomínio é composto por uma série de casas organizadas em sequência linear, acompanhando a topografia natural do terreno. O conjunto explora a relação direta com a paisagem, valorizando as visadas para a água e a presença contínua da vegetação.
A implantação busca minimizar o impacto visual das edificações, distribuindo os volumes em patamares e liberando o térreo para a continuidade dos percursos externos e áreas ajardinadas. O estacionamento é resolvido em subsolo, permitindo que o nível do solo seja destinado prioritariamente à fruição, circulação de pedestres e integração com o entorno natural.
As residências são concebidas a partir de volumes ortogonais, com jogos de cheios e vazios que garantem privacidade, controle solar e variações na fachada ao longo do conjunto. Painéis e planos de madeira reforçam a escala doméstica e estabelecem contraste com os volumes mais neutros, criando ritmo e identidade ao longo da implantação.
LOCALIZAÇÃO
Londrina, Paraná, Brasil
ÁREA
3.450m²
ANO DO PROJETO
2025
STATUS
Estudo Preliminar

A organização em série permite racionalidade construtiva sem abrir mão da qualidade espacial. Cada unidade mantém relação direta com o exterior, seja por meio de aberturas generosas, pátios ou terraços, sempre orientados para o lago e para o paisagismo.
O projeto propõe uma arquitetura silenciosa, em diálogo com a paisagem, onde a repetição controlada, a topografia e a materialidade constroem um conjunto coeso, equilibrando densidade, privacidade e integração com o ambiente natural.


ser_*10anos
© 2025 Ser Arquitetos. Todos os direitos reservados.
Rua Campo Grande, 85, sala 6, Londrina-Pr
+55 (43) 33610298
contato@serarquitetos.com



