
GALERIA HUMMIG
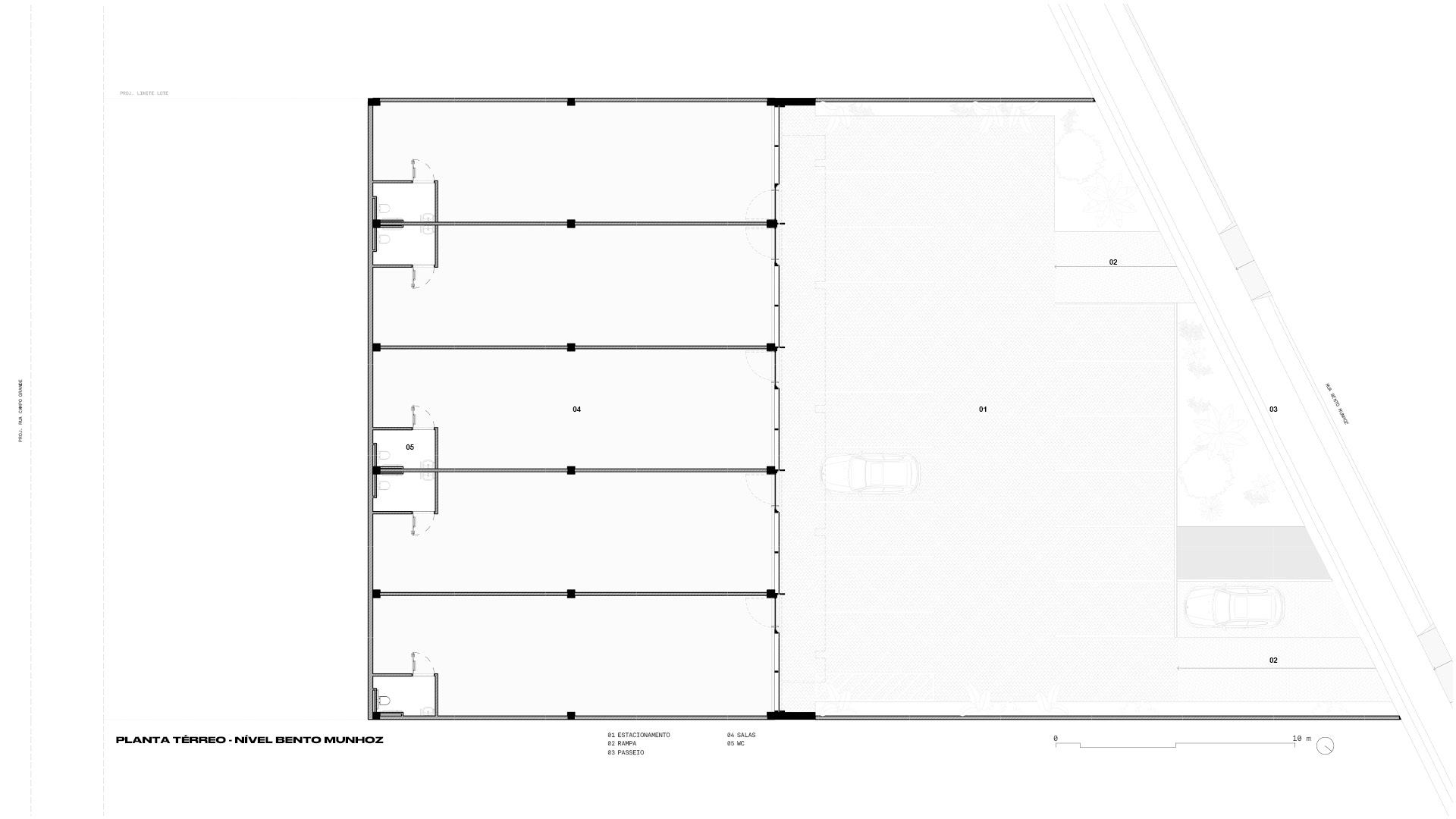
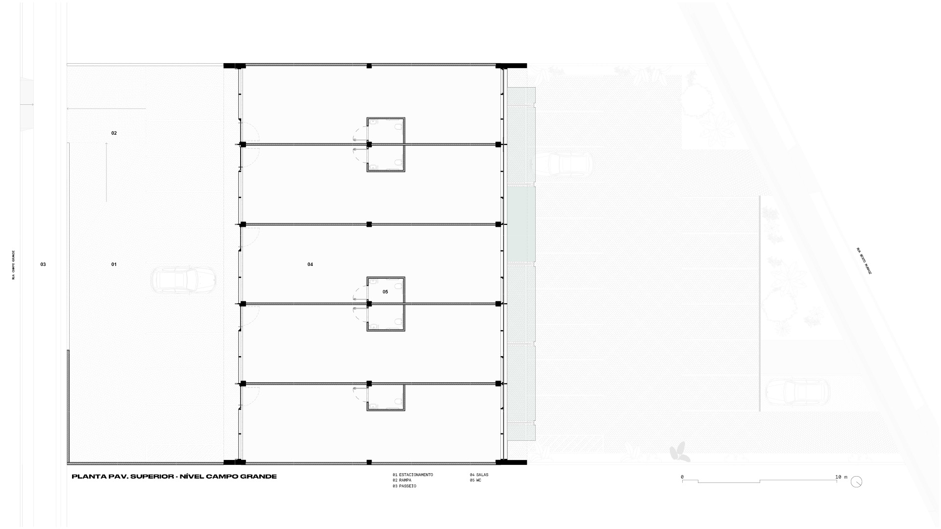
Implantado em um terreno com acentuado desnível, o projeto parte da topografia como ponto de partida para organizar o programa em dois pavimentos com acessos independentes. A solução resulta em uma galeria comercial marcada pela simplicidade formal e pelo uso direto da estrutura e da modulação como elementos de linguagem.
O edifício é acessado por duas ruas: a cota superior dá acesso ao pavimento superior da Rua Campo Grande, enquanto a cota inferior, na Rua Bento Munhoz, serve ao pavimento térreo. O programa repete-se em ambos os níveis: salas comerciais independentes organizadas em sequência, com infraestrutura de apoio e estacionamento frontal.
A fachada principal, voltada à Rua Bento Munhoz, atua como um grande plano envidraçado que reflete o entorno e dissolve os limites entre interior e exterior. O beiral metálico projeta-se sobre a calçada, protegendo as circulações e marcando a entrada de cada unidade. Já no nível superior, a implantação mais discreta permite que o edifício dialogue com o pedestre de forma mais contida, abrindo-se por completo apenas na face principal.
Ao eliminar excessos formais e buscar clareza na organização, o projeto busca responder com precisão ao programa comercial, aliando desempenho técnico, repetição e um gesto arquitetônico contido, porém expressivo.
LOCALIZAÇÃO
Londrina, Paraná, Brasil
ÁREA
1150M²
ANO DO PROJETO
2023
STATUS
Acabamentos e paisagismo

ser_*10anos
© 2025 Ser Arquitetos. Todos os direitos reservados.
Rua Campo Grande, 85, sala 6, Londrina-Pr
+55 (43) 33610298
contato@serarquitetos.com



