
KARBONE JARDINO
No segundo semestre de 2019 o escritório dirigido por Antonio Dias Junior foi incumbido de levar o Karbone Gastronomia, que até então era um restaurante em um container no Palhano Gastropark, para um espaço 8 vezes maior e com um programa significativamente mais amplo.
O Restaurante expandia e necessitava ganhar uma nova cara. Para isso, a criação do novo conceito do Karbone nasceu do anseio dos proprietários de criarem um espaço confortável, unindo a cara de boteco com muita comida boa inspirada na Itália e feita na brasa. Essa essência norteou o processo de projeto e denunciou os materiais ideais para materializar o restaurante: Madeira, tijolo, granilha e uma folha de pedra natural que foi iluminada e ganhou um destaque no centro do restaurante.
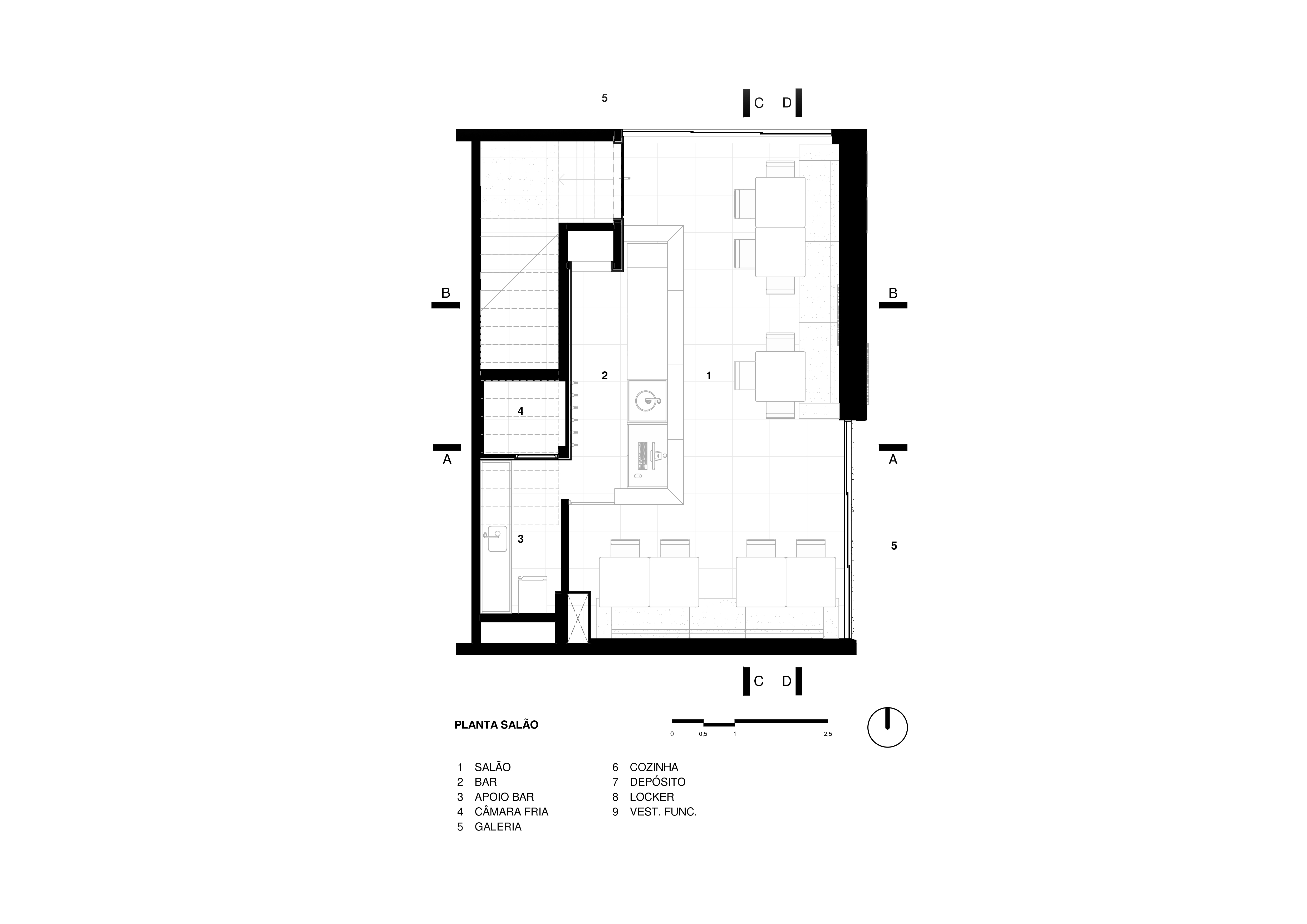
Com linhas simples e contemporâneas o restaurante acontece em 2 níveis. No térreo: salão, bar, câmara fria e uma pequena cozinha de apoio. No salão para 22 pessoas, o destaque é o balcão retrô iluminado, revestido com fitas de pedra natural onde acontecem os principais serviços do bar. Com 2 pés direitos, o espaço é contornado por prateleiras em madeira atirantadas por cabos de aço que decoram e iluminam o espaço. As mesas confortáveis, a iluminação e os materiais naturais criam uma atmosfera intimista e agradável, fazendo com que a experiência do restaurante seja sentida pelo paladar e por todas as outras sensações que o espaço proporciona.
O segundo nível concentra a maior parte da produção do restaurante e é acessado por uma escada camuflada em madeira e um monta-carga que tem a função de enviar os pedidos prontos para o salão.
LOCALIZAÇÃO
Londrina, Paraná
ÁREA
102,79m²
ANO DO PROJETO
2019
FOTOGRAFIA
Isabela Mayer





ser_*10anos
© 2025 Ser Arquitetos. Todos os direitos reservados.
Rua Campo Grande, 85, sala 6, Londrina-Pr
+55 (43) 33610298
contato@serarquitetos.com



