
LEMON PAPER
Localizada em um shopping em Londrina no interior do Paraná a papelaria foi concebida como uma experiência sensorial e afetiva, que associa a funcionalidade do espaço comercial à construção de uma atmosfera lúdica e convidativa. O projeto parte da ideia de que o ambiente físico de uma loja pode desempenhar papel ativo na formação da imaginação das crianças e na memória afetiva dos adultos.
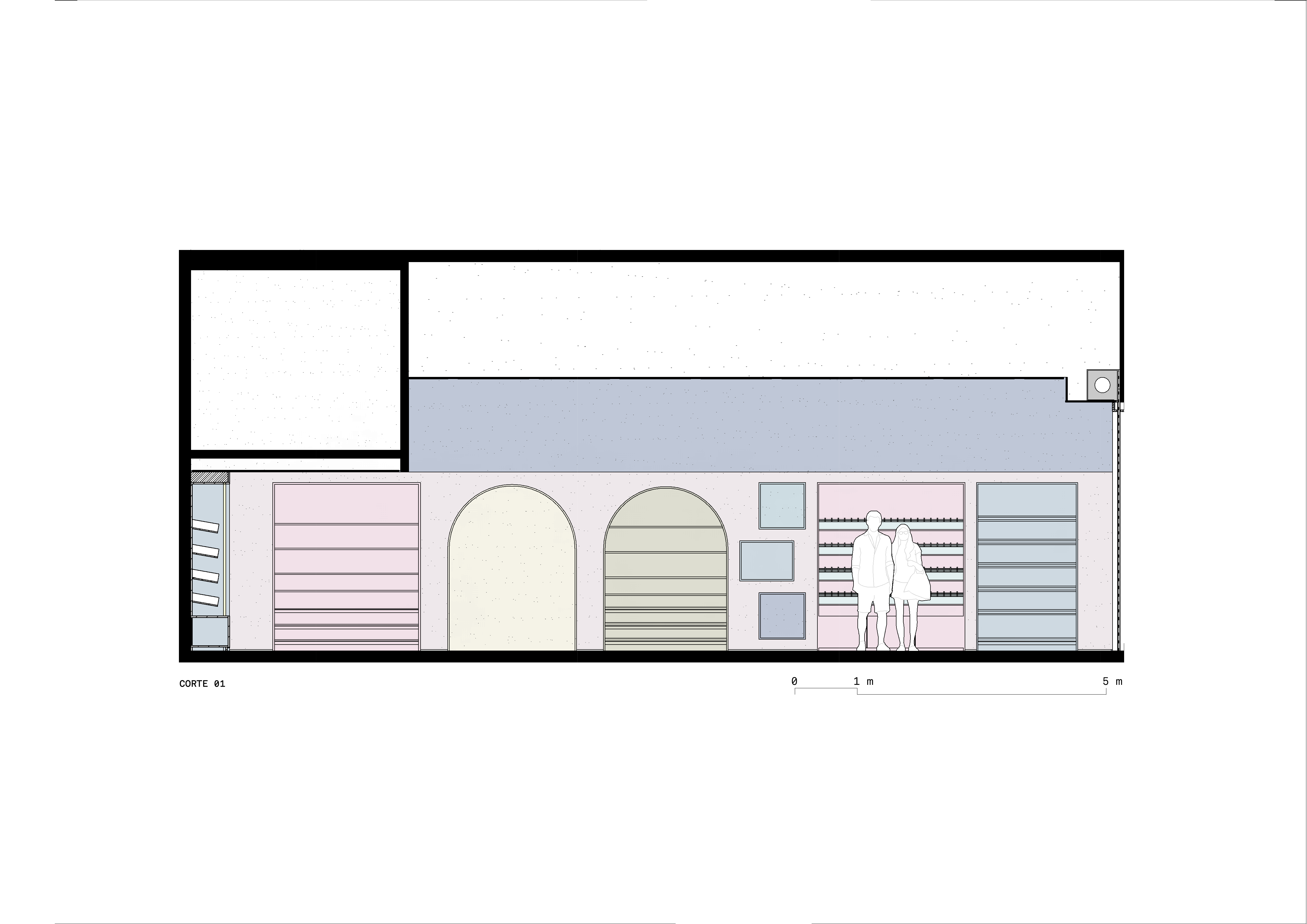
Com uma paleta cromática calibrada entre tons vibrantes e suaves, rosa, azul, amarelo e bordô, o projeto explora contrastes que despertam a curiosidade sem sobrecarregar a percepção. A setorização do espaço é fluida, mas claramente estruturada. Nichos expositivos em gesso organizam os produtos em painéis curvos ou ortogonais, enquanto elementos de mobiliário em marcenaria e serralheria centralizados convidam à permanência e ao toque.
A geometria dos arcos, presente nas estantes, faz referência direta ao universo simbólico da infância. Essa forma arquetípica, aliada à iluminação embutida e ao uso de volumes puros, propõe um espaço imersivo que reforça a identidade da marca. O forro em azul profundo ajuda a conter visualmente a multiplicidade de cores e produtos, atuando como pano de fundo neutro e teatral.
Ao fundo da loja, uma arquibancada leve integrada a um pilar cilíndrico amplia as possibilidades de uso do espaço, podendo funcionar como apoio para oficinas, leitura ou descanso. A disposição dos móveis e os pontos de exposição consideram escalas distintas de usuários, adultos e crianças, promovendo acessibilidade e interação espontânea.
LOCALIZAÇÃO
Londrina, Paraná, Brasil
ÁREA
70m²
ANO DO PROJETO
2022
FOTOGRAFIA
Joana França



Ao fundo da loja, uma arquibancada leve integrada a um pilar cilíndrico amplia as possibilidades de uso do espaço, podendo funcionar como apoio para oficinas, leitura ou descanso. A disposição dos móveis e os pontos de exposição consideram escalas distintas de usuários, adultos e crianças, promovendo acessibilidade e interação espontânea.

ser_*10anos
© 2025 Ser Arquitetos. Todos os direitos reservados.
Rua Campo Grande, 85, sala 6, Londrina-Pr
+55 (43) 33610298
contato@serarquitetos.com



