




CASA DE VIDRO
Localização Ibiporã, Paraná, Brasil
Área 137.00 m2
Ano do projeto 2019
Ano da construção 2021
Fotografias Manuel Sá
Execução Ser Arquitetos
Coordenação
Antonio Dias Junior
Equipe
Caio Risso
Wellington Nicastro
Maria Leticia Negrão Ronqui
Luigi Bono Bolfer
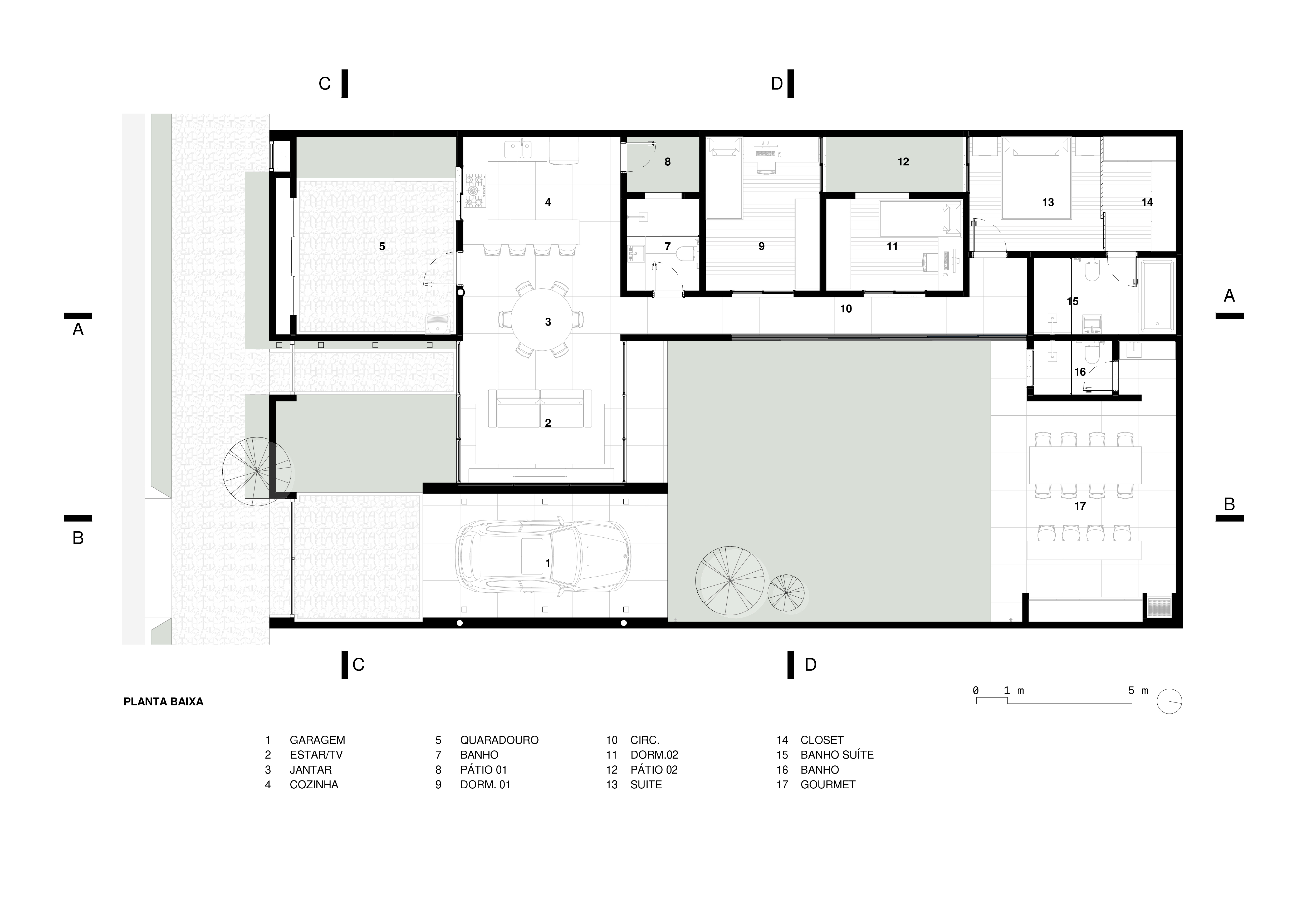
Localizada em Ibiporã, no interior do Paraná, em um bairro recém inaugurado e com poucas residências construídas, a Casa de Vidro ocupa um terreno de 300m², sendo 137m² de área construída.
Decorrente a um orçamento limitado, as habilidades do proprietário como marceneiro e serralheiro foram de grande importância e fundamentais para viabilizar o projeto, onde os elementos construtivos que o norteiam foram inteiramente executados pelo proprietário, sendo eles as esquadrias, estrutura metálica e o forro em madeira.
Com uma setorização funcional e intuitiva, a casa se dispõe no terreno em 3 blocos que se articulam formando um pátio interno.
Ao adentrar o terreno, a primeira apreensão é da área social da casa. Na sala de estar, o pé direito alto em conjunto com os fechamentos em vidro, delimitam de forma clara os planos verticais e horizontais, resultando em uma sensação única ao usuário de que a cobertura, projetada em estrutura metálica e forro em madeira, pareça flutuar sobre a construção.
Valendo-se da ideia de utilizar ao máximo os recursos naturais oferecidos, os dormitórios são voltados para a face oeste, onde encontram-se pátios internos, posicionados estrategicamente com o intuíto de amenizar o calor e tirar proveito da iluminação e ventilação natural, além da circulação íntima ser permeada por portas janelas voltadas para leste que permite a entrada de sol pela manhã e uma ventilação cruzada nesses ambientes, além da permeabilidade, garantir a visual para o pátio externo.
No bloco aos fundos do terreno, está localizada a área gourmet, também com o intuíto de proporcionar permeabilidade e visual para o pátio; lavabo e banheiro da suíte, esse último conta com uma abertura zenital que permite a iluminação e a ventilação natural ao ambiente.
Os espaços de apoio e serviços são concentrados na face sul do terreno, separados do acesso principal da casa e recuo frontal pelo muro de delimitação do quaradouro, o qual complementa a volumetria da fachada e também permite conexão direta à cozinha.












