
CASAS SIAMESAS
Localizadas na zona leste da cidade de Londrina, no norte do Paraná, as Casas Siamesas surgiram da ideia de repensar a tradicional casa geminada, muito explorada em várias cidades do Brasil, buscando soluções conjuntas para melhor aproveitamento do espaço e redução de custos.
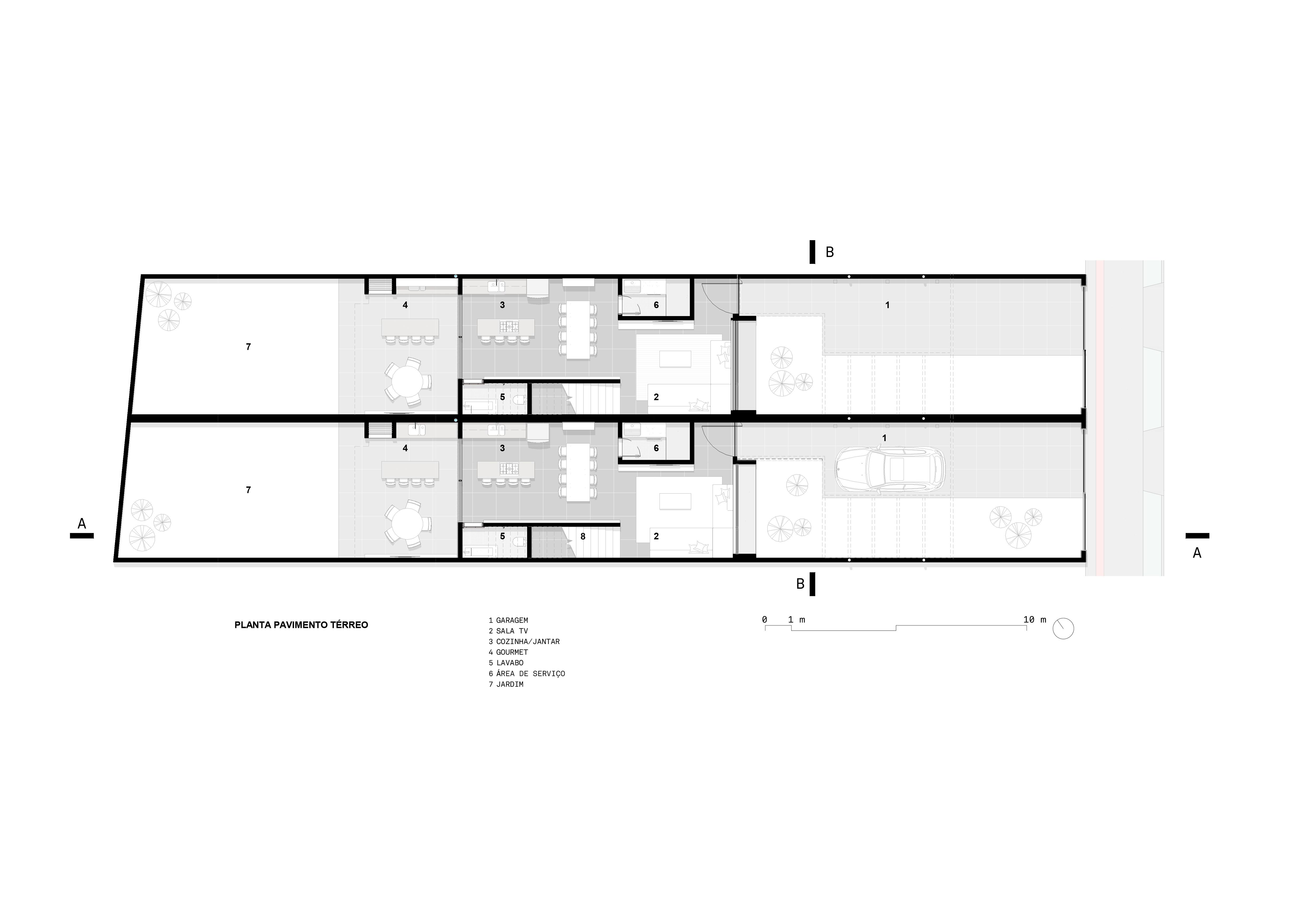
Composta por dois volumes verticais brancos, apresentando grandes aberturas recuadas, apoiados sobre uma parede revestida em madeira, a volumetria da fachada é destacada pelos planos de vidro. Orientados para a face sul, esses planos têm a função de proporcionar luz natural indireta para os quatro ambientes integrados no pavimento térreo, além de facilitar a ventilação cruzada com as aberturas na face norte.
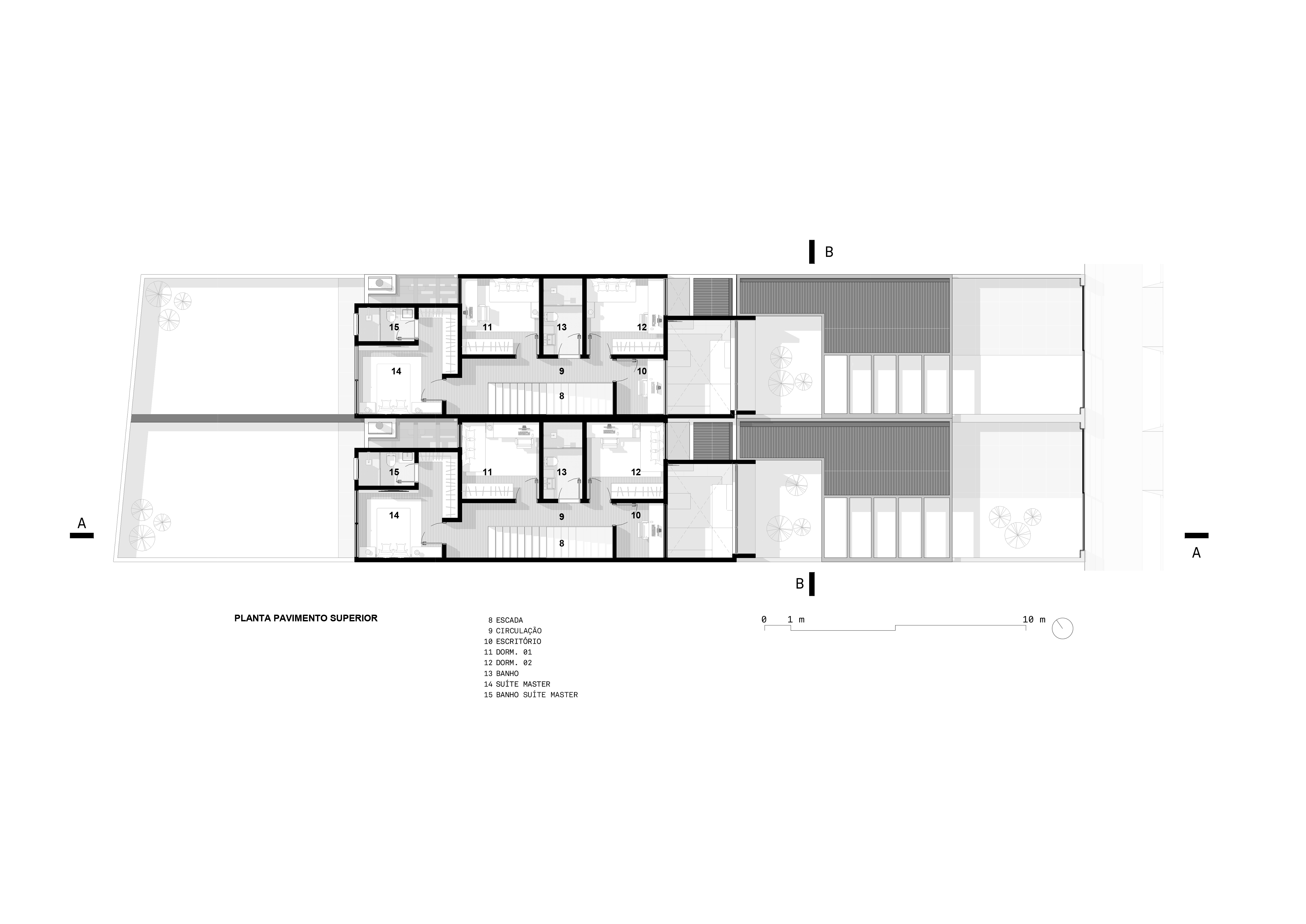
A garagem foi separada dos volumes principais e contrasta com estes através de uma linha horizontal leve em alvenaria pintada de preto, conectando-se aos pisos por meio de pilares cilíndricos. Além da área social integrada, que compreende o hall, sala de TV, sala de jantar, cozinha e área gourmet, o térreo também abriga a área de serviço e o quaradouro, isolados em um setor de serviços para maximizar o uso da área social. No pavimento superior, encontram-se a suíte principal, dois dormitórios, um banheiro e um lavabo.
LOCALIZAÇÃO
Londrina, Paraná, Brasil
ÁREA
157m²
ANO DO PROJETO
2022
FOTOS
Manuel Sá

ser_*10anos
© 2025 Ser Arquitetos. Todos os direitos reservados.
Rua Campo Grande, 85, sala 6, Londrina-Pr
+55 (43) 33610298
contato@serarquitetos.com



