
CASA NO CATUAĆ
A Casa consiste em um projeto de reestruturação e ampliação de uma residĆŖncia existente, implantada em um lote de esquina em um condomĆnio. A intervenção parte do entendimento das preexistĆŖncias e da topografia do terreno, utilizando esses condicionantes como base para a reorganização espacial e a redefinição da expressĆ£o arquitetĆ“nica da casa.
O projeto propƵe uma nova leitura volumĆ©trica a partir da sobreposição de volumes puros, capazes de atualizar a linguagem da edificação e qualificar sua relação com o entorno. O embasamento tĆ©rreo acompanha o desnĆvel natural do lote, organizando os acessos e estabelecendo uma transição gradual entre a rua, os espaƧos externos e o interior da residĆŖncia.
No pavimento térreo, a reforma reorganiza os ambientes sociais, promovendo maior integração entre estar, jantar e cozinha. A abertura de novos planos de vidro amplia a relação com o jardim e as Ôreas externas, favorecendo a entrada de luz natural e a ventilação cruzada, além de potencializar a fluidez espacial. Os setores de serviço e apoio são reconfigurados de forma funcional, adequando-se às demandas contemporâneas de uso.
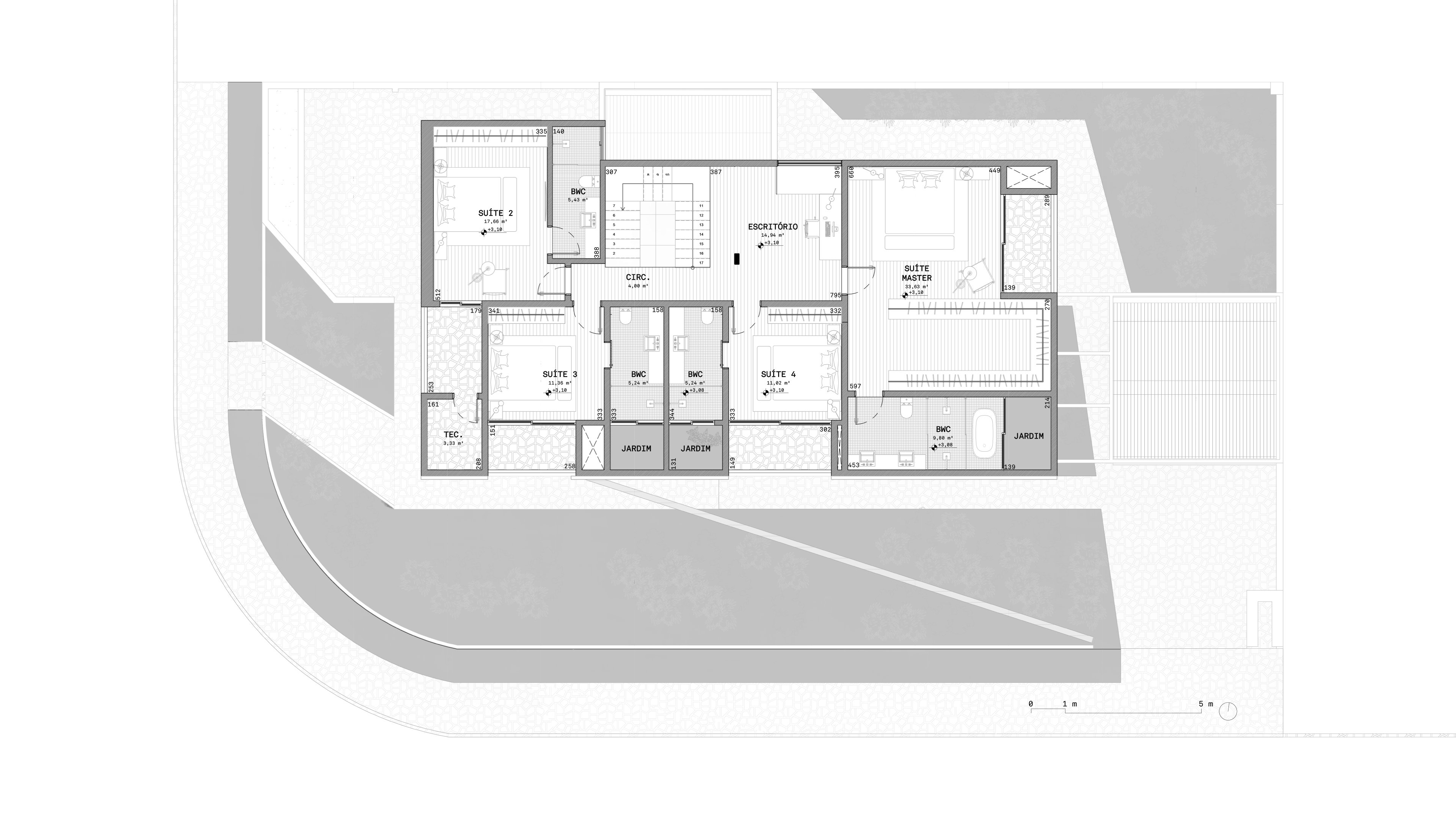
O pavimento superior concentra a Ć”rea Ćntima da casa, tambĆ©m reestruturada a partir de uma lógica mais clara de circulação e setorização. As suĆtes sĆ£o redistribuĆdas buscando maior conforto ambiental, controle de insolação e privacidade, com destaque para a suĆte master, que estabelece uma relação mais direta com o exterior.
LOCALIZAĆĆO
Londrina, ParanĆ”, Brasil
ĆREA
420m²
ANO DO PROJETO
2025
STATUS
Em obras


Formalmente, a intervenção se expressa por fachadas predominantemente opacas, com aberturas profundas e recortes precisos, reforƧando a leitura monolĆtica do conjunto e contribuindo para o desempenho tĆ©rmico da edificação. A nova materialidade, volumes brancos e planos contĆnuos, atua como elemento unificador entre partes existentes e novas, conferindo unidade ao projeto.


ser_*10anos
Ā© 2025 Ser Arquitetos. Todos os direitos reservados.
Rua Campo Grande, 85, sala 6, Londrina-Pr
+55 (43) 33610298
contato@serarquitetos.com



