
CASAS EM SÉRIE NO MATO GROSSO
O projeto parte da investigação sobre habitação em série como estratégia para conciliar racionalidade construtiva, diversidade de uso e qualidade espacial. Implantadas no Condomínio Unique, as casas foram concebidas a partir de um sistema modular que permite diferentes configurações a partir de uma mesma lógica arquitetônica.
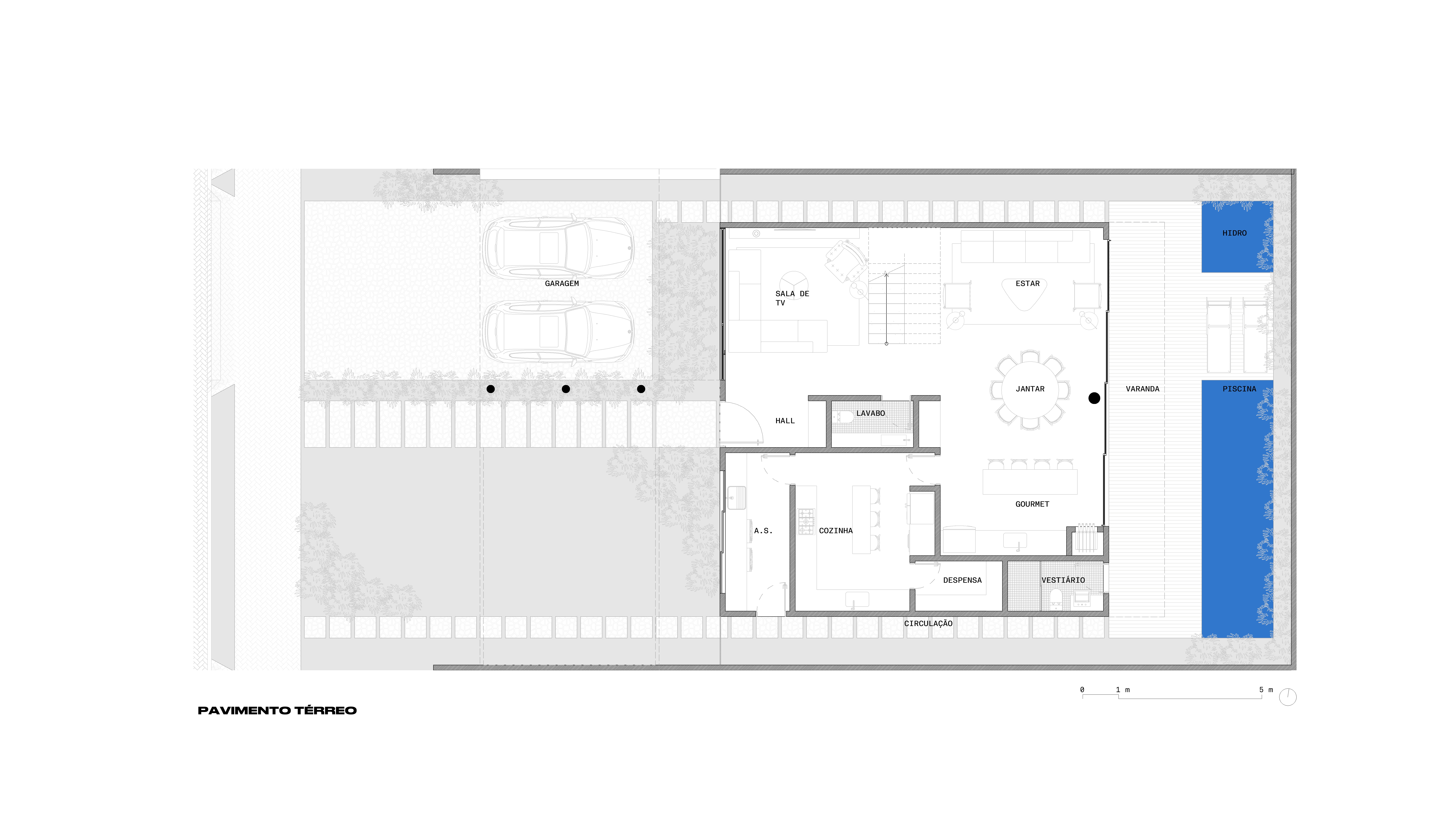
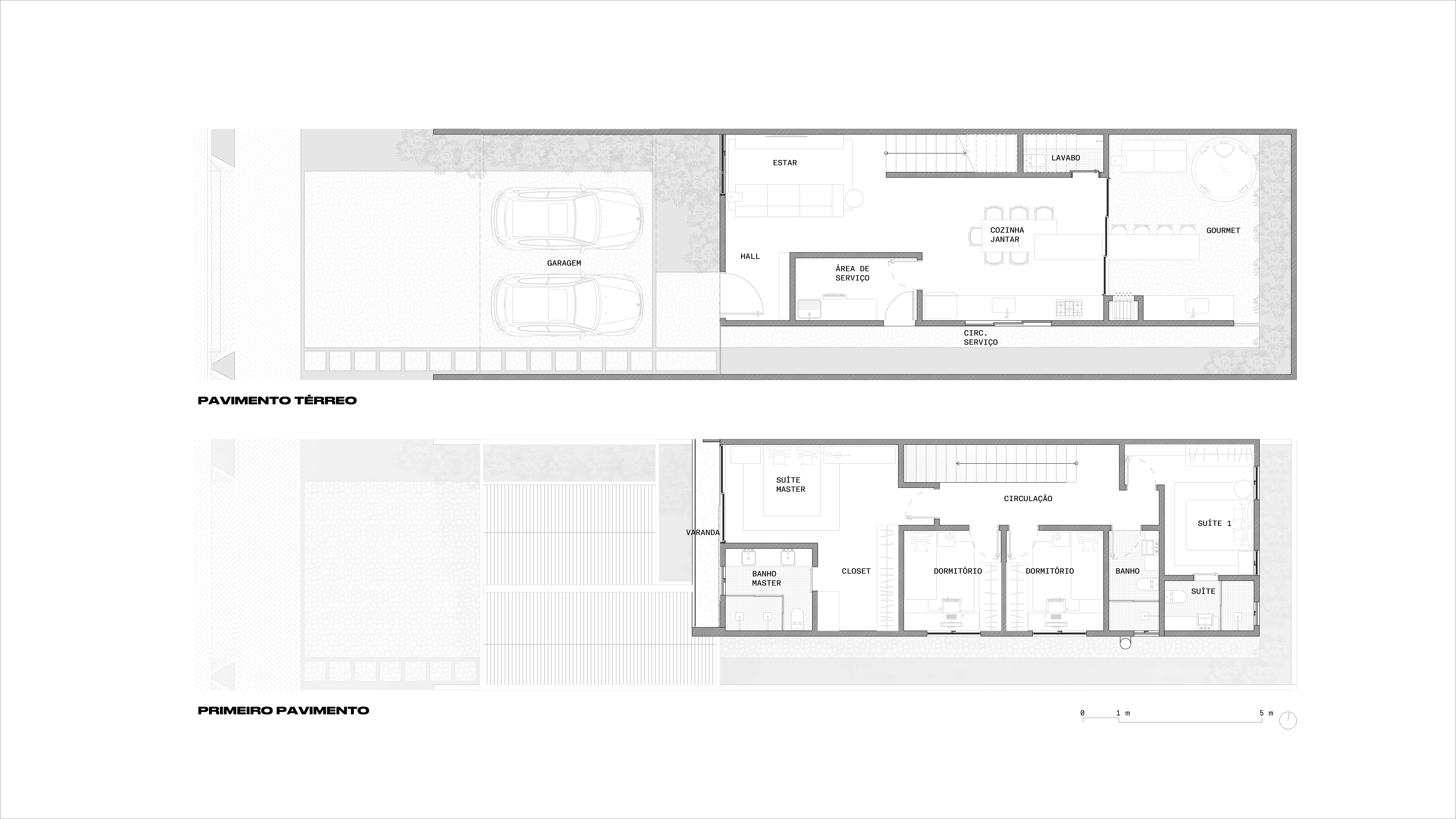
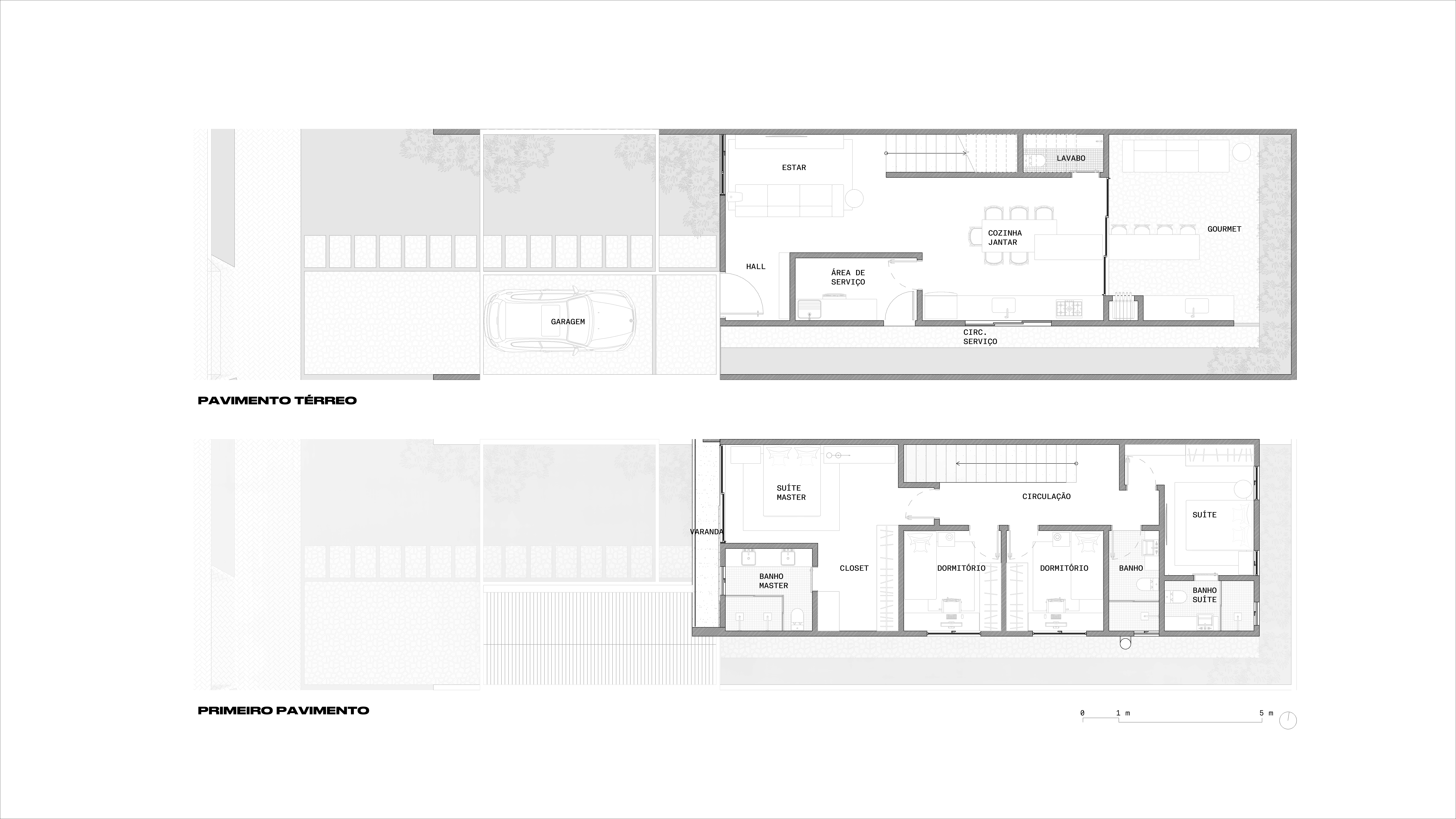
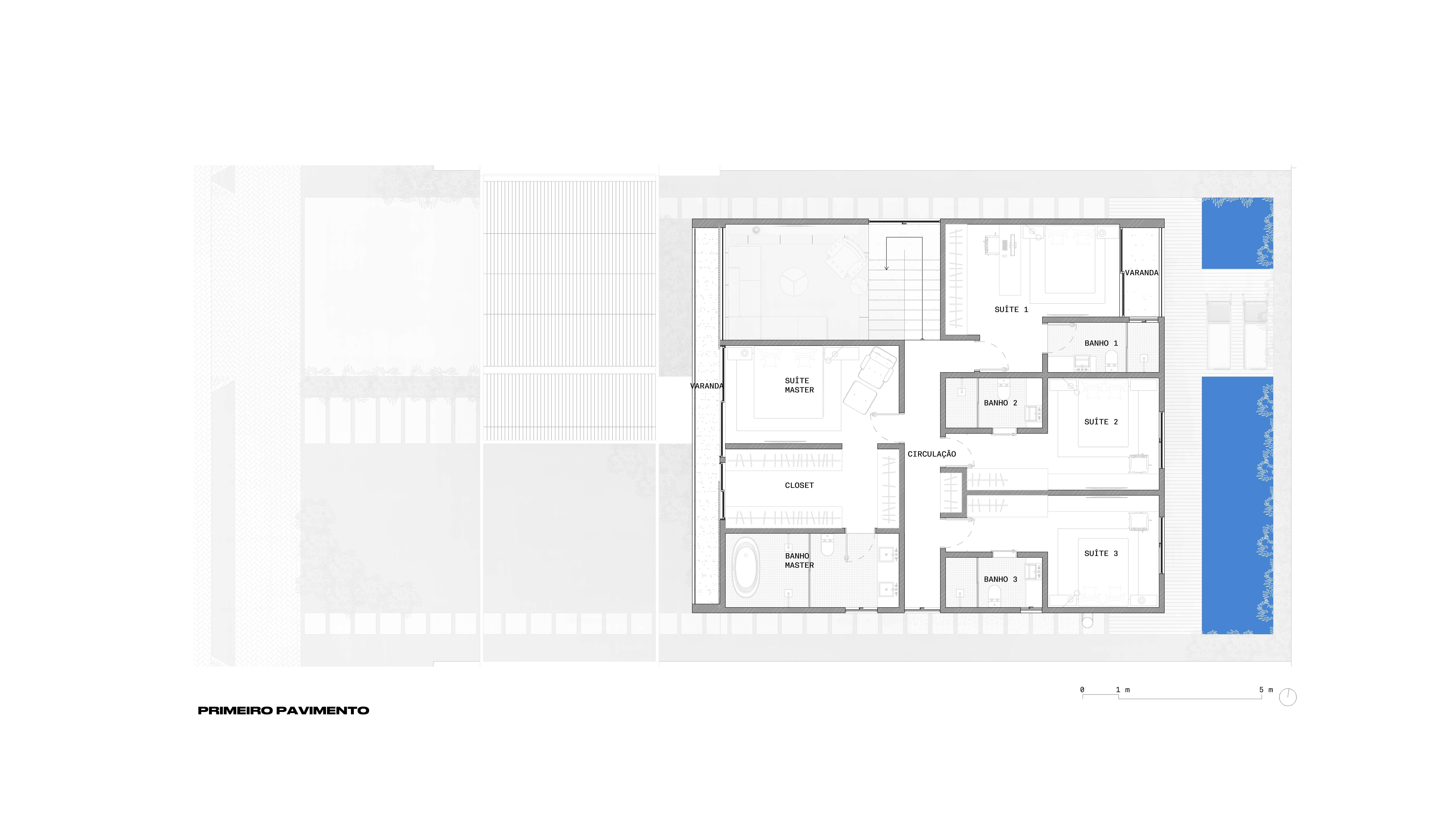
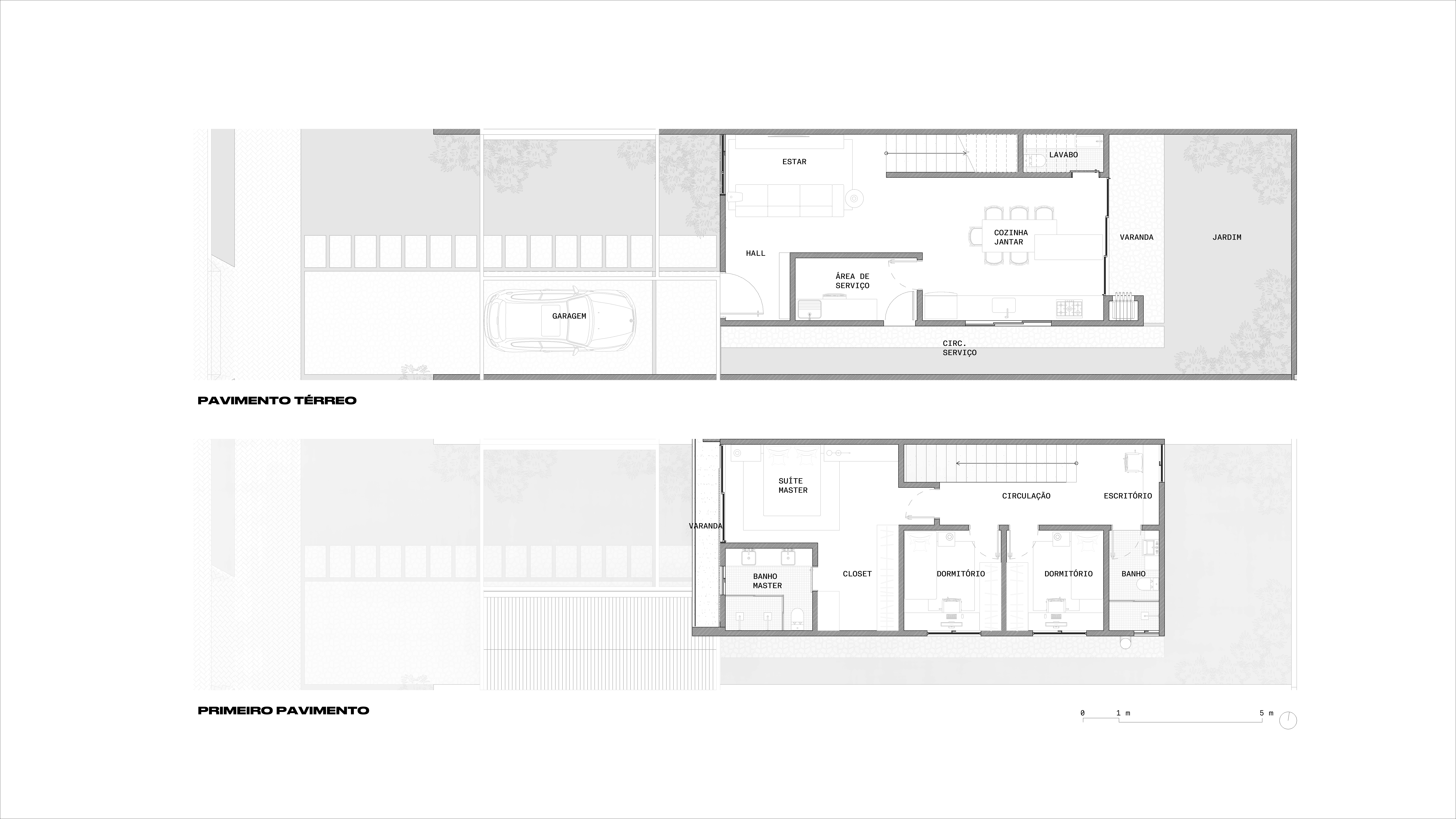
A proposta se estrutura em quatro variações tipológicas, com áreas construídas que variam aproximadamente entre 145 m² e 292 m². A partir de uma unidade base, o sistema admite ampliações e combinações — seja por acréscimos programáticos, extensões longitudinais ou pela união de duas unidades — garantindo flexibilidade de ocupação e adaptação às diferentes demandas dos moradores ao longo do tempo.
Formalmente, o conjunto é marcado por volumes simples e bem definidos, com linguagem contemporânea e repetição controlada. A uniformidade das fachadas cria identidade ao conjunto, enquanto variações sutis de cheios e vazios, recuos e materiais evitam a monotonia típica de empreendimentos seriados. Elementos como varandas, brises e planos de sombra contribuem para o conforto ambiental e qualificam a relação entre interior e exterior.
A implantação valoriza o alinhamento urbano e o ritmo das unidades ao longo da via, criando uma paisagem residencial coesa e equilibrada. Jardins frontais, áreas permeáveis e abrigos de veículos integrados ao volume principal reforçam a escala doméstica e a continuidade visual do conjunto.
LOCALIZAÇÃO
Rondonópolis, Mato Grosso, Brasil
ÁREA
Opção 01 – 145m²
Opção 02 – 177m²
Opção 03 – 177m²
Opção 04 – 292m²
ANO DO PROJETO
2025
STATUS
Estudo Preliminar




ser_*10anos
© 2025 Ser Arquitetos. Todos os direitos reservados.
Rua Campo Grande, 85, sala 6, Londrina-Pr
+55 (43) 33610298
contato@serarquitetos.com



